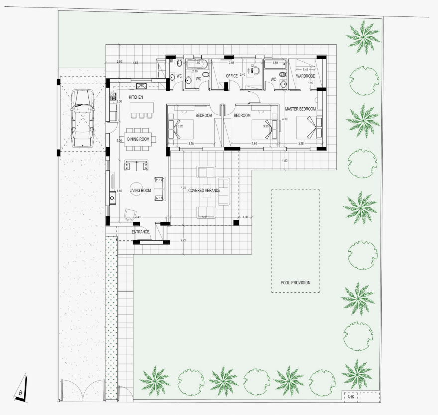
House 13 is a single-storey, Type B villa in the LEVEL Residences. It is built on a spacious Plot Area of 756 m². The house offers a total constructed area of 201 m² with an internal covered area of 150 m². The house is configured with three bedrooms: a master bedroom and two standard bedrooms. It also includes a dedicated office space that offers the flexibility to be converted into a fourth bedroom. The total covered area of the residence is 180 m², including a covered veranda of 30 m² and a dedicated covered parking space of 21 m². The property includes Underfloor heating and provision for an Air Conditioning System with split units. A swimming pool is an optional feature. The total number of sanitary facilities is three: two full bathrooms and one guest WC. The master bedroom is a private ensuite with its own full bathroom, and the remaining two bedrooms share the second full bathroom. A separate guest WC is provided near the living spaces. Back Garden Covered Air Conditioning Under Floor
If you’re looking to sell an extraordinary home, you deserve a marketing package that’s equally exceptional. That’s where we come in. We take stunning photographs and create a cinematic video that showcases every detail of your home, from the unique features to the surrounding area.
Our RICS accredited surveyors will even assist you with your valuation benchmaked against the comparable market and other relevant key criteria
We’ll advertise your home on all the major property portals, including Rightmove, Zoopla and A Place in the Sun , as well as to our 78,000 HNW individuals database and global partner network.Furthermore, we’ll promote your home extensively on social media platforms like Instagram, Facebook, LinkedIn, TikTok, and YouTube, ensuring that your property gets the maximum exposure it deserves
We provide a comprehensive explanation of why we recommend the launch price, based on a wealth of data and an uplift that reflects your home’s unique features. And when it comes to viewings, we give potential buyers a personal guided tour, without resorting to clichés or hard sells. We listen carefully to their thoughts and feelings to truly understand their connection to your home.
But our work doesn’t stop there. We manage every aspect of the, is this being added?y.
And best of all, we don’t believe in tying our clients into lengthy contracts. There’s no notice period with us, just a sincere commitment to selling your extraordinary home.





























