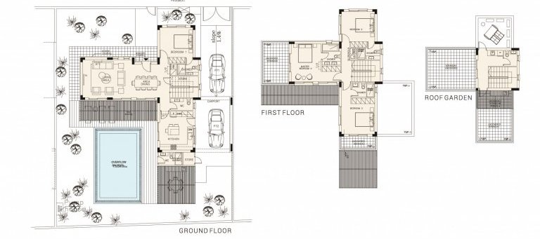
A modern design 4 bedroom villa for sale, located in the heart of the tourist area of Paphos in Cyprus. The villa is designed in a large plot and enjoys a private swimming pool with spacious outdoor areas. The villa is located in front of one of the most famous sandy beaches in Paphos and enjoys easy access to a variety of restaurants, pubs, bars 5-star beach resorts and other amenities.
If you’re looking to sell an extraordinary home, you deserve a marketing package that’s equally exceptional. That’s where we come in. We take stunning photographs and create a cinematic video that showcases every detail of your home, from the unique features to the surrounding area.
Our RICS accredited surveyors will even assist you with your valuation benchmaked against the comparable market and other relevant key criteria
We’ll advertise your home on all the major property portals, including Rightmove, Zoopla and A Place in the Sun , as well as to our 78,000 HNW individuals database and global partner network.Furthermore, we’ll promote your home extensively on social media platforms like Instagram, Facebook, LinkedIn, TikTok, and YouTube, ensuring that your property gets the maximum exposure it deserves
We provide a comprehensive explanation of why we recommend the launch price, based on a wealth of data and an uplift that reflects your home’s unique features. And when it comes to viewings, we give potential buyers a personal guided tour, without resorting to clichés or hard sells. We listen carefully to their thoughts and feelings to truly understand their connection to your home.
But our work doesn’t stop there. We manage every aspect of the, is this being added?y.
And best of all, we don’t believe in tying our clients into lengthy contracts. There’s no notice period with us, just a sincere commitment to selling your extraordinary home.













